




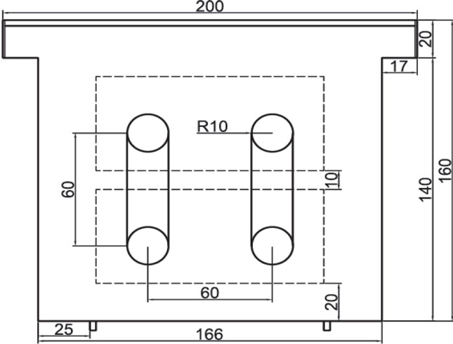
roznica._glubina_160_mm._shirina_200_mm..jpg)
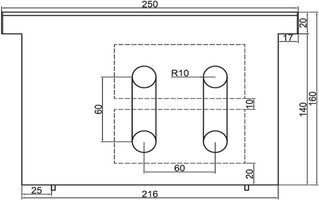
roznica._glubina_160_mm._shirina_250_mm.jpg
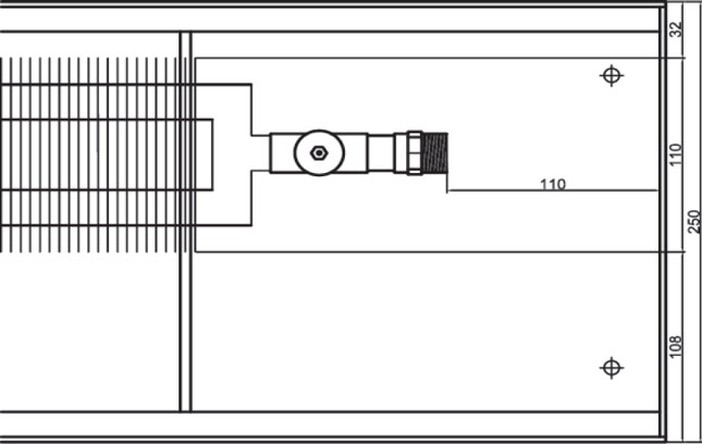
)
У вас остались вопросы? Мы готовы
на них ответить. Оставьте заявку и наш
менеджер свяжется с Вами!
* Отправляя информацию, Вы соглашаетесь
с политикой обработки персональных данных
У вас остались вопросы? Мы готовы
на них ответить. Оставьте заявку и наш
менеджер свяжется с Вами!
* Отправляя информацию, Вы соглашаетесь
с политикой обработки персональных данных


